Používame cookies

Súbory cookie a ďalšie technológie sledovania používame na zlepšenie vášho zážitku z prehliadania našich webových stránok, na to, aby sme vám zobrazovali prispôsobený obsah a cielené reklamy, na analýzu návštevnosti našich webových stránok a na pochopenie toho, odkiaľ naši návštevníci prichádzajú. Viac info

 

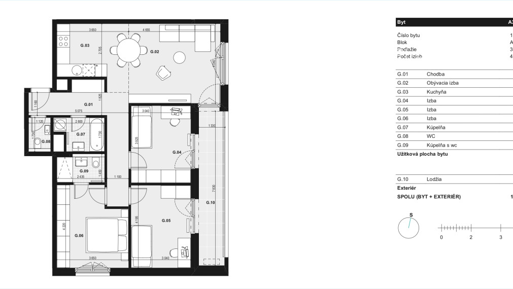
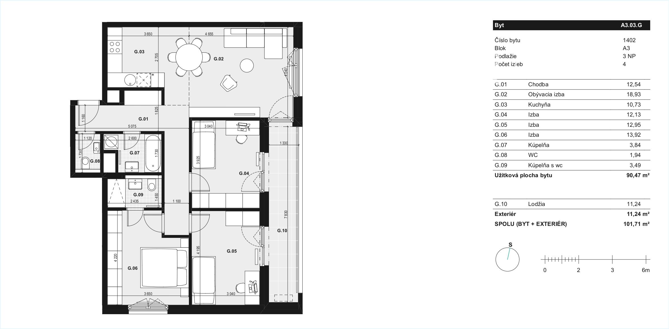
4 izbový byt v BORY Na Hrádzi, šarmantný, vzdušný, pivnica a garážové státie

Ulica: Mateja Encingera
Obec: Bratislava-Devínska Nová Ves
Okres: Bratislava IV
Kraj: Bratislavský kraj
Druh: Byty
Typ: Predaj
Typ bytu: 4-izbový byt
385 000 €

Popis nehnuteľnosti

PLAZA REAL Vám exkluzívne ponúka na predaj v Boroch, projekt "Na Hrádzi" atraktívny 4. byt v novostavbe, ul. Mateja Encingera, kat. územie D.N.V., Bratislava

BYTOVÝ DOM: 6 podlažný obytný dom s bez barierovým vstupom poskytuje komorné, rodinné bývanie.  K dispozícii je výťah.

BYT: 4. izb. útulný, svetlý byt s úžitkovou plochou 90,5m2, sa nachádza na 3.poschodí z piatich s orientáciou na juhovýchod. K dispozícii je loggia o veľkorysej ploche 11,5 m2. Interiér bytu je vzdušný, účelný, ladený vo svetlých farbách. Na stenách sú biele stierky, rsp, keramický obklad v kúpeľni a samostatnom WC. Nášľapnú vrstvu v byte tvorí plávajúca laminátová podlaha. Hliníkové okná majú vonkajšie elektrické žalúzie, obytné miestnosti sú prepojené s exteriérom mikroventiláciou cez obvodovú stenu.

ZARIADENIE: Byt je kompletne vybavený vstavanými skriňami, kuchynskou linkou na mieru, niektoré kúsky nábytku je možné odkúpiť po dohode.. Nová práčka a suška AEG v cene 1400.-Eur už v cene bytu.

DISPOZÍCIA: Vynikajúce funkčné dispozičné riešenie je rozdelené na dennú a nočnú časť. Otvorený obývací priestor s jedálenským stolom a kuchynským kútom je centrom socializácie rodiny. Kľudový režim zabezpečujú dve izby s loggiou a manželská spálňa so samostatnou kúpeľňou čo ešte zvyšuje komfort. Druká kúpeľňa a „hosťovské“ WC sú samostané, prístupné hneď zo vstupnej komunikácie.

PARKOVANIE:  Garážové státie na 1NP v cene 20.000 Eur je podmienkou kúpy spolu s bytom.

PIVNICA: Je k dispozícii v cene bytu o ploche 3m2 na 1NP.

KOČÍKAREŇ: Pre väčší komfort vlastníkov je k dispozícii na 1NP priestor určený na bicykle a kočíky. 

LOKALITA: Kompletná občianska vybavenosť. MHD. Kaufland. Metro. V tesnej blízkosti sa nachádza OC Bory MALL a nemocnica Bory, sú vzdialené par minút na pešo. Lokalita zároveň ponúka výborné možnosti pre rekreáciu v blízkej prírode (turistika, street workout, cyklotrasy, lavičky, jazierka, detské ihriská...atd )

CENA: 385.000.- Eur + 20.000.- Eur 

Viac info na 0910/ 932 519 Ing. Marian Hollý

Vlastnosti

Status:
aktívne
Vlastníctvo:
osobné
Úžitková plocha:
105 m2
Podlahová plocha:
90.5 m2
Skladová plocha:
3 m2
Stav:
novostavba
Počet izieb:
4
Energetický certifikát:
A
Energetická náročnosť budovy:
Nízkoenergetický
Typ budovy:
zmiešané
Loggia:
áno
Garáž:
áno
Pivnica:
áno
Výťah:
áno
Rok výstavby:
2023
Rok kolaudácie:
2024
Poschodie:
3
Celková plocha:
105 m2
Plocha loggie:
11.5 m2
Počet logií:
1
Počet garáží:
1
Plocha garáže:
14 m2
Pivnica plocha:
3 m2
Počet pivníc:
1
Orientácia:
juhovýchod
Optická sieť:
áno
Status:
aktívne
Vlastníctvo:
osobné
Úžitková plocha:
105 m2
Podlahová plocha:
90.5 m2
Skladová plocha:
3 m2
Stav:
novostavba
Počet izieb:
4
Energetický certifikát:
A
Energetická náročnosť budovy:
Nízkoenergetický
Typ budovy:
zmiešané
Loggia:
áno
Garáž:
áno
Pivnica:
áno
Výťah:
áno
Rok výstavby:
2023
Rok kolaudácie:
2024
Poschodie:
3
Celková plocha:
105 m2
Plocha loggie:
11.5 m2
Počet logií:
1
Počet garáží:
1
Plocha garáže:
14 m2
Pivnica plocha:
3 m2
Počet pivníc:
1
Orientácia:
juhovýchod
Optická sieť:
áno

Informatívna úverová kalkulačka

Pozrieť na mape

Maklér

Ing. Marian Hollý

Ing. Marian Hollý

maklér

  • Slovensky
  • English

Radi Vám poradíme

Podobné nehnuteľnosti